Efficience
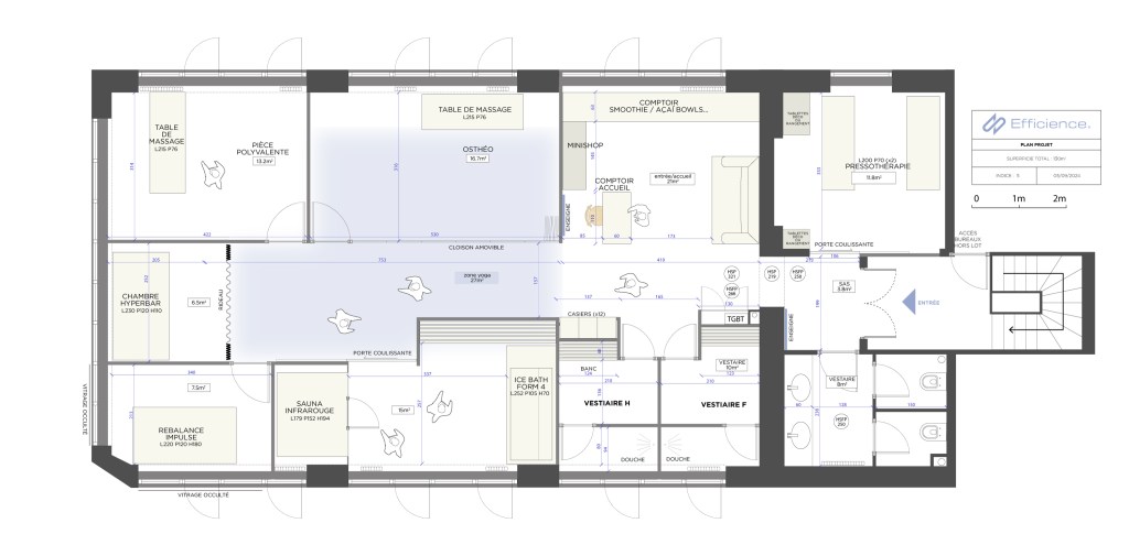
Création d’un centre de récupération physique.
Avec des teintes apaisantes et des matériaux de qualité, cet espace réinvente les codes traditionnels des centres de récupération.
Ici, les pièces ne se limitent pas à accueillir des machines : elles offrent une atmosphère élégante et chaleureuse, pensée pour le bien-être physique et mental.










