Corner

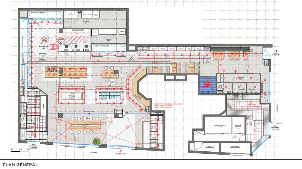
Création d’un concept de cantine/supermarché de proximité situé à Boulogne.

Conçu pour répondre aux besoins des actifs travaillant dans les bureaux environnants, ce lieu invite à une pause simple au coin de la rue.