Piscine Rémy
Rénovation d’une piscine intégrant la création d’une plateforme permettant un accès direct au jardin. Cette plateforme, sous laquelle il est possible de nager, permet également de redonner à la piscine une forme rectangulaire harmonieuse.
Les nouveaux revêtements incluent de la mosaïque pour les parties immergées, tandis que la partie supérieure est habillée de carreaux grand format (160 x 320 cm) pour un rendu moderne et épuré.
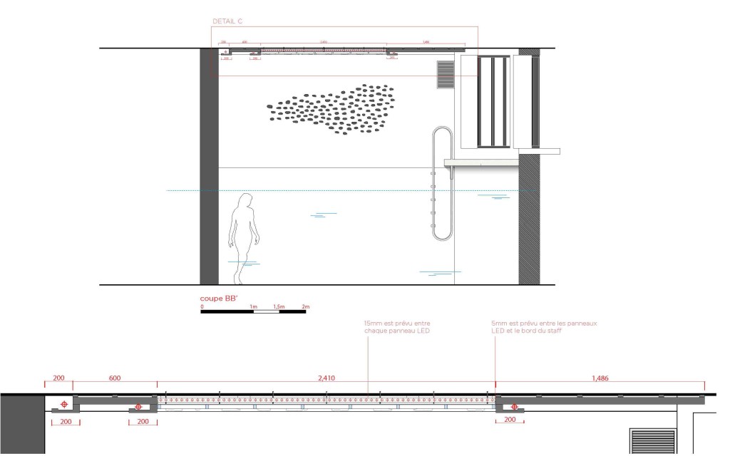
Des échelles conçues sur mesure viennent compléter l’ensemble, tandis qu’un mur se distingue par une œuvre artistique originale composée de galets evoquant un banc de poissons.
Le plafond a bénéficié d’un traitement spécifique, avec des plaques découpées évoquant la texture et la fluidité des galets. Ces motifs apportent une luminosité subtile et une atmosphère apaisante qui viennent sublimer l’ensemble de l’espace.














