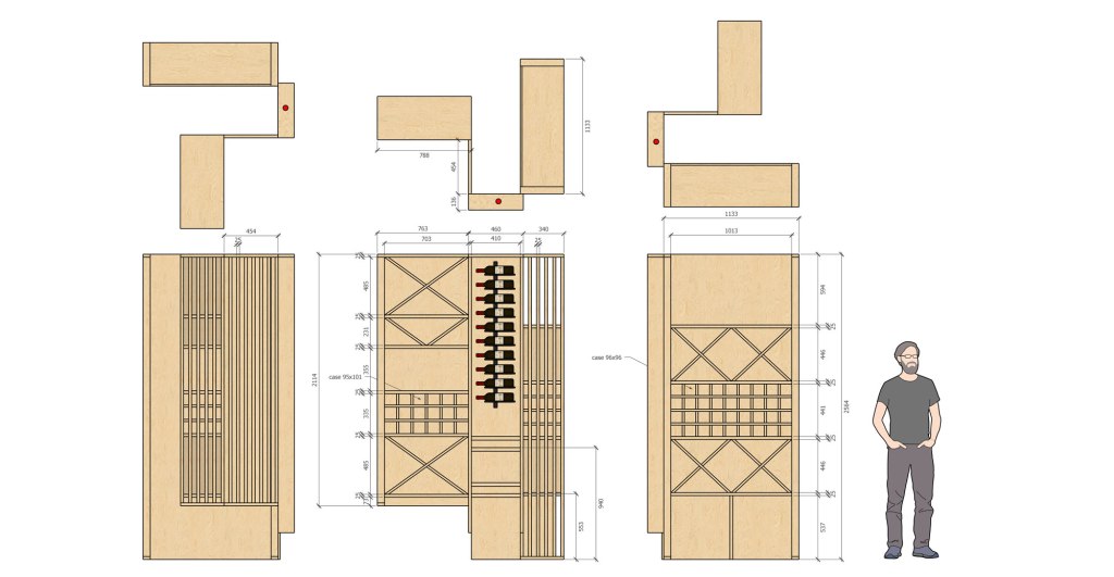
Cuisine Montfort
Transformation de l’espace cuisine et conception d’une cave sur mesure, alliant simplicité et élégance. Le projet répond au souhait du client de créer une harmonie entre les différents éléments de mobilier, assurant une continuité fluide entre la cuisine et la cave.










