Appartement Victorine
Projet d’appartement, en cours de construction et livré en septembre 2025, a été imaginé pour offrir un cadre de vie élégant et fonctionnel.
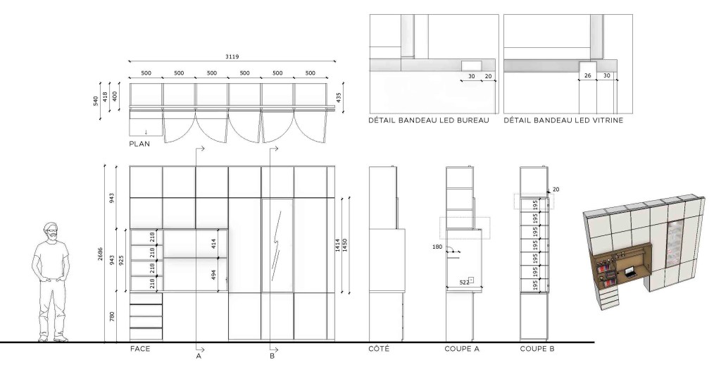
Des rangements intégrés dès l’entrée et une bibliothèque sur mesure optimisent les volumes tout en apportant du caractère.
Les formes arrondies et les couleurs douces insufflent une atmosphère apaisante et chaleureuse.
Un espace extérieur, accueil un petit jacuzzi et une terrasse végétalisée.
Superficie intérieure : 77m2
Superficie extérieure : 45m2



























