Appartement Richard
Appartement du 11ème arrondissement repensé avec une attention particulière portée à l’agencement du salon.
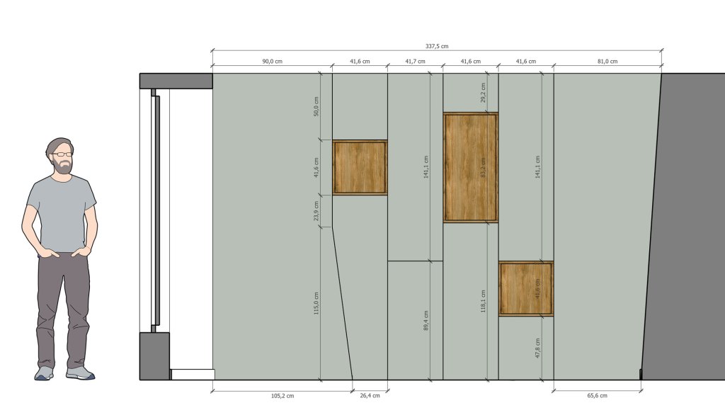
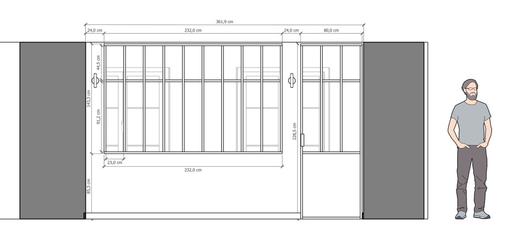
Des placards sur mesure ont été créés pour s’adapter parfaitement aux volumes existants, tandis qu’une verrière a été installée afin de laisser la lumière traverser la lumière.
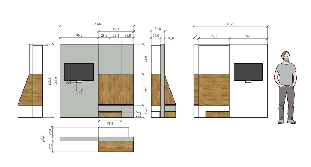
Le meuble TV, conçu sur mesure, intègre harmonieusement la lampe Pipistrello, un objet cher au propriétaire, qui a ainsi trouvé sa place idéale.
La cuisine et la salle à manger ont également été retravaillées pour optimiser chaque centimètre, tout en privilégiant une esthétique élégante et fonctionnelle.
Superficie totale: 60m2











PHOTOS AVANT




