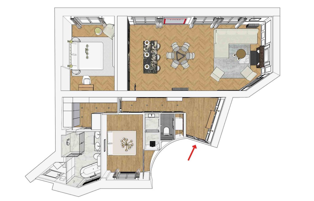
Appartement Galilée
Appartement situé dans le 16ème arrondissement, entièrement rénové dans un style haussmannien moderne. Une cuisine, réalisée en granit noir, dont les plaques ont été selectionné en compagnie des clients.
La salle de bain principale, habillée de marbre, reflète une élégance intemporelle, tandis qu’une seconde salle de bain en mosaïque apporte une touche contemporaine et raffinée.
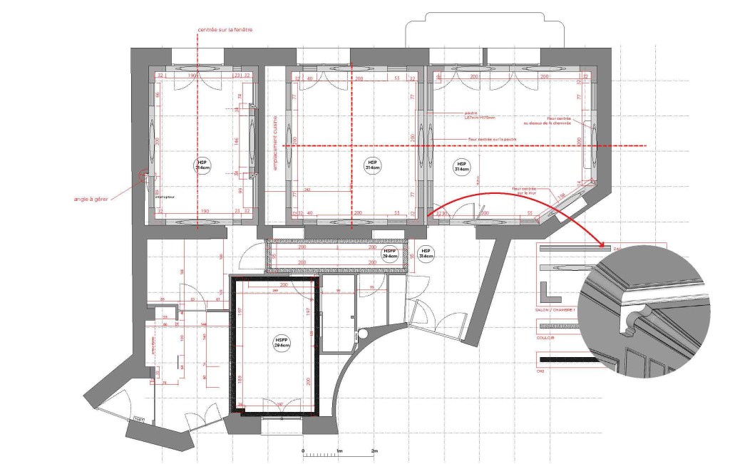
Des couleurs douces parcourent l’ensemble de l’appartement, où les moulures de plafonds et de murs ont été recréées avec soin pour préserver son caractère classique.
Superficie totale: 100m2


















