Le Grand Monde
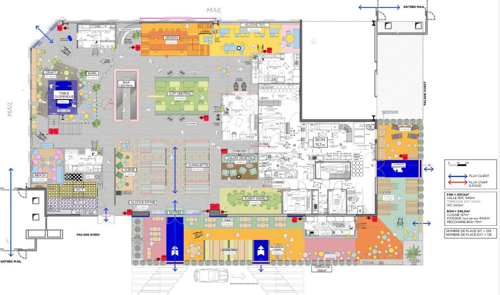
Un food hall festif et joyeux, véritable bonbon architectural, où tout est pensé pour étonné. Ce lieu unique abrite 4 kiosques gourmands, un bar central vibrant et une scène dédiée aux événements.
Conçu pour rassembler les gens dans une ambiance acidulée et pleine de vie, Le Grand Monde offre bien plus qu’une simple expérience culinaire. Chaque détail a été imaginé pour captiver : des couleurs acidulées jusqu’au plafond, créant une décoration audacieuse qui semble tout droit sortie d’un rêve.
Le lieu est ponctué d’espaces thématiques, chacun avec son charme : un coin plage pour s’évader, une table suspendue pour surprendre, des gradins pour se poser, ou encore un coin cosy pour se détendre. À la tombée de la nuit, le décor se transforme et laisse place à une ambiance musicale, parfaite pour danser ou suivre les grands matchs en direct.
Le Grand Monde, c’est bien plus qu’un food hall, c’est une expérience qui réveille tous les sens.
Réalisé avec l’agence Babel Design & Création





































































